Waco
Cabin
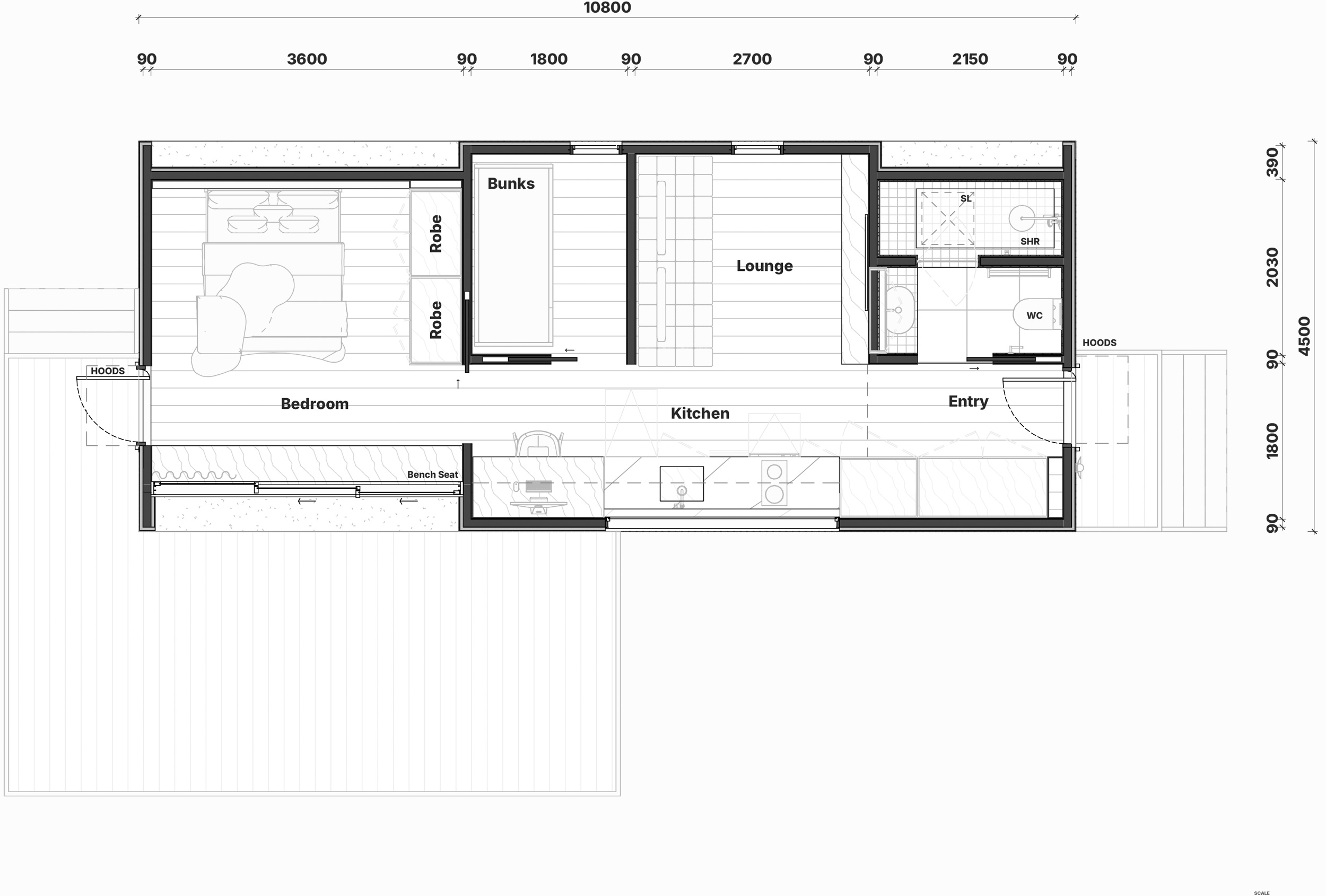
The Waco is a thoughtfully designed single-module cabin, refined to deliver even greater functionality within a compact footprint. Ideal as a holiday retreat, granny flat, secondary dwelling, or backyard studio, the layout accommodates up to four people with improved flow and liveability throughout.
Inside, a full-size queen bedroom with built-in robes is complemented by a dedicated bunk alcove for guests or family. The reconfigured open-plan living area and expanded kitchen create a more functional and resolved space, with improved storage, bar seating, and quality appliances throughout.
The layout enhances spatial clarity and everyday usability, with a fully appointed bathroom and carefully considered joinery that maximises every square metre.
Precision-built in our factory using premium materials and energy-efficient systems, the Waco is a durable, low-maintenance, and move-in-ready solution designed for modern compact living.
INCLUSIONS
At Arcopod, our Cabin Range is designed with premium materials and expert craftsmanship to deliver a stay that feels considered, comfortable, and built to last. Each cabin is constructed to the highest standards, balancing thoughtful design with functional living in nature-first settings.
For a detailed inclusions list specific to each cabin design, please contact our team.

LETS GET STARTED
Contact us today to help gather information for an exciting new modular housing solution.
For more information please fill in the contact form and one of our staff members will get back to you shortly.
07 30 592 638
sales@arcopod.com.au
1/5 Thomas Hanlon Court, Yatala, QLD, 4207



















